Why is designing a house for your specific site important?
- will8370
- Aug 23, 2025
- 6 min read
Do you ever drive through a modern suburb and think every house looks the same? And think you could be anywhere in NZ, Australia or even America? This is what happens when a site's context, history and natural features aren't considered.

At Woven Architects we closely consider the sites features before we even begin building design work, as the site and it's surroundings are key to forming a good design response. A great building design for one location could be completely inappropriate for another site, even if it's just up the road.
Here are some of the main items we look at for each project, although further investigation into some sites might reveal other interesting features we can, or need, to design to.
Neighbouring building/s proximity, size, history, character and design features. Are they something we want to celebrate and tie into, or something to protects ourselves from?
Planning rules. Are they restrictive? Do we go outside the rules and lodge a Resource Consent?
Site services. Particularly Council public drainage running through the site can be something to watch out for?
Flood hazards and overland flow paths. Do we need to raise the floor level? Must flood water be able to run under the house?
Slope. Sloping sites can be great for views, but need special consideration.
Views. Are there views we want to block? Are there amazing views we want to capture and frame?
Privacy. The opposite of views, do we want private areas in all or certain parts of the house. How can this be created while still allowing for good views?
Natural features on or around the site. Are there areas we can't build such as near gulley's? Are there natural features we want a close connection to?
Climate: sun, wind, rainfall intensity, humidity.
Shading. Sun and light are great, but not when your house is roasting hot in the middle of summer.
History. Does the area have a special character we need to respect? Are their historical or cultural ideas, elements of built forms we can draw inspiration from?
Soil bearing capacity / slope stability. If soils are weak a lighter building design may need to be considered, or a different construction method.
Seismic zone/risk. Does the building need to be designed to deal with a high earthquake risk?
Other buildings on the site. Especially relevant when adding an ancillary unit or sleepout to a site, how to we tie in with the main house on the site?
Traffic and other noise. Is there a source of noise we want to shelter ourselves from?
Trees. Are there beautiful trees on the site we want to connect with or protect? Are there Council trees that can restrict where we enter the site?
Vehicle and pedestrian access. How to we allow for cars and people to come and go from the site?
A typical poorly designed suburban house (or even lifestyle blockhouse) may address to some degree, some of these items. Generally these being the more practical ones needed to get through the Consenting process. But a lot of them might barely be looked at, if at all. The result, well, is basically a new suburb. New, yes. Pleasant, perhaps. But are largely without character, identity and far from climate responsive.
A couple of examples of projects that have put close consideration into how to respond to their specific sites are below, outlining a few key ideas for each.
Project 1 Pūriri Hideaway, Raglan

Photograph of the site before

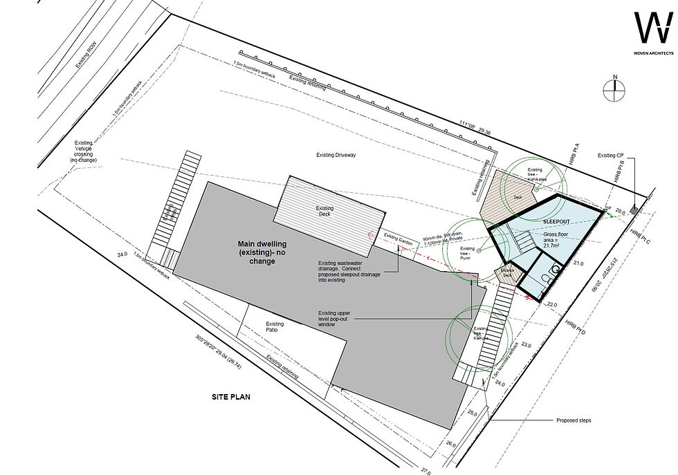
Site Plan. The Pūriri Hideaway, a residential sleepout, is located in an unused corner of the site. Its form is derived by the space between the site boundary setbacks, the existing house and between established native trees. It has links to the front and back entrances of the house.

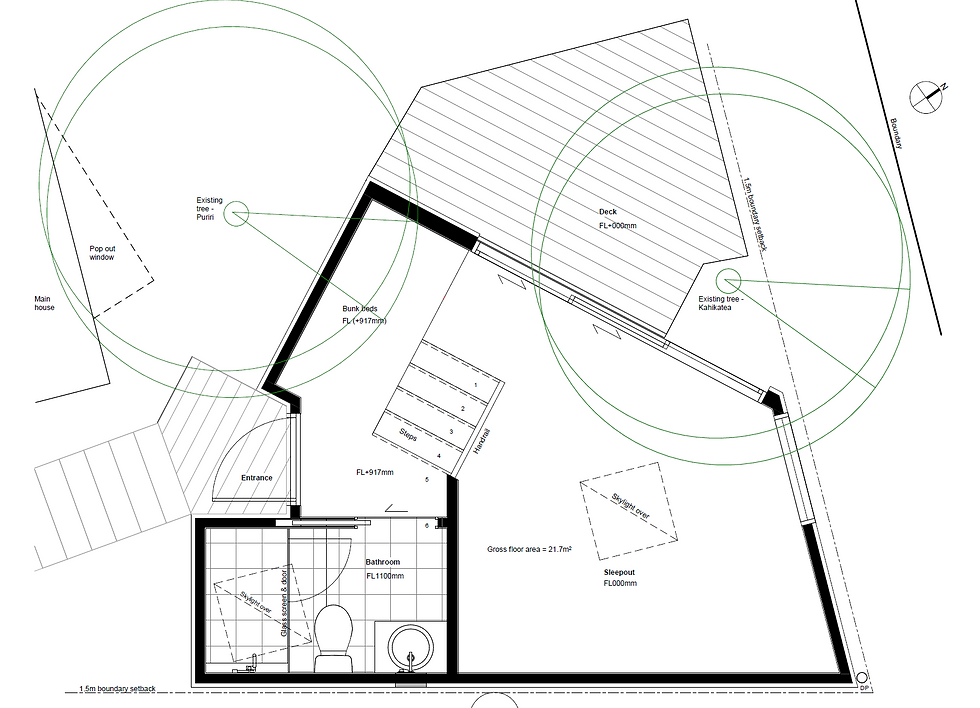
Floor Plan. A large slider door and deck face out to the northern sun (which filters through the native trees).
The floor level steps down three times to match the slope of the site to stay under tight Council sunlight planes, as well as to reduce its visibility from the main house which is in close proximity.
The two skylights look out to the native trees above and provide natural lighting. No windows are located on the Southern facade as they would be looking directly at the neighbour's property. This gives the appearance from the interior that the cabin is located somewhere remote, even though surrounded by houses.

Cross section. The cross section through the sleepout shows how it follows the slope of the site. This also meant minimal excavation was needed, and reduced the impact on the surrounding native trees.

Interior photograph viewed from the top of the stairs. Shows the sleepouts close links to the surrounding native trees, and how light filled the space is.
Project 2 Amber Views, Pirongia Country House

Photograph of the empty section. A blank canvas.

Site Plan. For this country lifestyle block we had a near blank canvas to work with, so formed a design around the following:
Capturing northern sunlight to the main living spaces, including a large covered outdoor area/ deck which wraps around the building.
Creating privacy from the street.
Capturing views to the surrounding mountains and hills.
Sheltering from the prevailing western wind.
Creating a vehicle and pedestrian access zone that is completely separate from the living spaces. Also creating an outdoor clothes line, rubbish bin zone that is separate as well.

Floor Plan. Shows the design that resulted from designing to the site.
Only a small number of windows face the street for privacy, and the outdoor area is largely screened from the street as well. The form of the house creates a private front outdoor area.
Key windows capture views to the surrounding hills and mountains. Particularly the kitchen window in front of the sink looks out to Mt Pirongia, the office window looks out to Mt Kakepuku, and the northern windows look out to a nice nearby hill.
The large northern glazing is well protected by a covered and screened outdoor area and large eaves.

Interior photograph showing the kitchen window looking out to Mt Pirongia.

Exterior photograph showing the large north facing covered outdoor area. The outdoor area is largely screened from the road for privacy as well as from the western wind. It's open just enough in that direction to provide views to Mt Pirongia. The screened outdoor area provides nice filtered light to the highly glazed, north facing, living spaces.
Project 3 Maxwell Avenue, Westmere Auckland
Project by Archoffice Architects, Auckland. A project I worked on as an Architectural Graduate in 2014. A great example of designing in a tight urban context.

Ground and First Floor Plans. The house is split over three levels to work with the steep contours of the site. At any one point it is one or two levels high. Private courtyards are formed each side of glazed building link, away from the busy street.

Exterior photograph of the street facade. The level pedestrian access leads to a double height feature entrance space . Cars ramp down to the garage, which is cut into the site. The roof heights were kept low across the site to keep under tight Council sunlight planes.
The front facade is largely glazed to get maximum northern light, yet is shrouded in a modern feature screen to provide privacy and control sunlight. The front screen angles out to provide a small Juliet balcony in front of large slider doors facing the street, giving a nice connection to it. The proportions and textures of this front facade tie in beautifully with the traditional villas both side of it, yet in a modern style. This is a great example of modern architecture tying in well with character heritage houses.

Section. Shows the house stepping down with the slope of the site and remaining under tight Council sunlight planes. By breaking the house down into smaller masses allows for high levels of natural light and ventilation all around.

Exterior photograph of private outdoor areas. Even though the house takes up most of the site, private courtyards are able to be formed by clever placement on the site and are nicely framed by the house.
To finish
These are some examples of modern houses relating to and responding to their specific sites in creative and unique ways. The results are beautiful and unique houses that are comfortable to live in, look great and maximize to potential of their sites. Some elements we incorporate into all designs, such as maximizing natural light and ventilation and forming privacy. Other elements are unique to the project depending on the site slope and neighbouring buildings for example.
If you're interested in how we could create an amazing, site specific piece of architecture for you, please contact us today. We would love to hear from you.



Comments